散水是什么分部工程
时间:
“散水”在建筑工程中通常是指建筑物外墙底部的排水构造,主要用于将雨水从建筑物周围排走,防止雨水渗入墙体或基础,起到保护建筑物的作用。
一、什么是散水?

散水是建筑室外工程的一部分,一般位于建筑物外墙四周,与地面相接处。它的作用是:
排除雨水,防止雨水积聚在建筑物基础附近;
防止雨水侵蚀墙体和地基;
增强建筑的耐久性和安全性。
二、散水属于哪个分部工程?
在建筑工程中,根据《建设工程施工质量验收统一标准》(GB50300)以及相关专业工程分类,散水一般属于以下分部工程:
1. 建筑地面工程(属于分部工程)
散水作为建筑地面的一部分,常被归入建筑地面分部工程中。
在《建筑地面工程施工质量验收规范》(GB50209)中,散水属于室外地面工程中的内容。
2. 建筑装饰装修工程
如果散水涉及石材、地砖等装饰面层,也可能被归入建筑装饰装修工程中的地面子分部工程。

3. 屋面工程
在某些情况下,如果散水与屋面排水系统相连,也可能与屋面工程有关联,但主要还是属于地面工程。
三、散水的常见类型
1. 混凝土散水:最常见,造价低、施工方便。
2. 水泥砂浆散水:用于较轻荷载区域。
3. 石砌散水:适用于有景观要求的区域。
4. 预制块散水:便于安装和维护。
四、施工要点
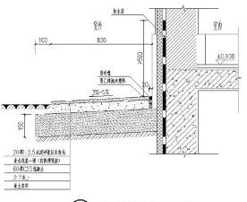
散水应设置一定的坡度(一般为3%~5%),向远离建筑物的方向倾斜;
散水宽度一般为600mm~1000mm;
与墙体之间应设变形缝,防止开裂;

散水下部需做垫层,保证排水顺畅。
:
| 项目 | 内容 |
| 名称 | 散水 |
| 属于分部工程 | 建筑地面工程 / 建筑装饰装修工程 |
| 主要功能 | 排水、防渗、保护建筑基础 |
| 常见材料 | 混凝土、水泥砂浆、石材等 |
如你在具体工程中遇到问题,建议参考当地《建筑工程施工质量验收规范》或咨询相关专业工程师。
